En la elaboración de este proyecto residencial se utilizó material de acero para su elaboración, lo que hizo que la estructura sea más versátil y se pueda adaptar a cualquier espacio que este destinado para construcción.

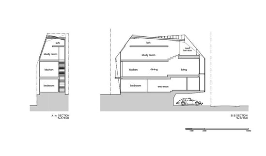
La casa se ubica en el centro de la ciudad de Tokio, tiene una superficie de 5 x 16 metros que abarca de norte a sur, cuenta con un garaje que está elaborado de hormigón. Los muros que tiene el edificio son de 10 metros de altura en el que están entrelazados entre sí.

Cuenta con un acabo de madera con espesor de 100mm, la casa permite que entre la luz parcialmente ya que está cubierta con doble capa de metal que tiene expansión esto permite una limitación de las líneas de visión en el exterior.
Hoy en día las casas de acero son una modernización en la construcción de viviendas ya que ofrece soluciones sostenibles, tiene unas ventajas increíbles por su durabilidad, rapidez. Las estructuras son ensambladas directamente en el espacio de la construcción esto hace que el impacto al entorno sea mínimo.
Fuente: Archdaily
Otros links: Láminas y Aceros


